Helen Hefter M. Arch. Georg Hefter Dipl.-Ing. Architekt und Zimmerer - Ökologisches Bauen und Holzbau im Raum Witzenhausen, Kassel und Göttingen

Ansicht Reihenhaus in Schwedenrot

Schwedenhaus trifft Reihenhaussiedlung

Reihenendhaus in Niedrigenergiebauweise

Neubau in Darmstadt-Eberstadt

Entwurf für Abra-Architekten, Darmstadt.
Fertigstellung 2010

In dem neuen Baugebiet E44 in Darmstadt-Eberstadt haben wir ein Reihenendhaus für eine 4-köpfige Familie entworfen. Die Nord-Süd-Ausrichtung des Baugrundstückes spiegelt sich in der Fassade wieder: geschlossen nach Norden, geöffnet nach Süden. Verbindendes Element sind die Holzverschalung, die in Anlehnung an die schwedische Herkunft des Bauherren voraussichtlich mit schwedischem Faluröd-Anstrich ausgeführt wird. Die farbigen Elemente werden von der als Künstlerin schaffenden Bauherrin selbst gestaltet.

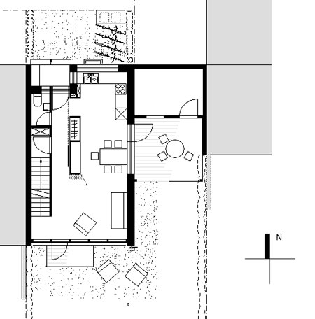
Grundriss EG
Erdgeschoss: Durch einen offenen Grundriss entsteht ein dreiseitig belichteter, für die Abmessungen großzügig erscheinender Raum mit fließendem Übergang von Küche, Essbereich und Wohnen. Ein Einbaumöbel grenzt den Aufenthaltsbereich vom Eingang, WC und Treppe ab und schafft einen Flur. Im Sommer sorgt der geschützte Außenbereich trotz dichtester Bebauung für die gewünschte Privatsphäre
Grundriss OG und DDG
Ober- und Dachgeschoss: Durch die Grundrissgestaltung können alle Zimmer mit viel natürlichem Licht versorgt werden. Die Zimmer im Obergeschoss für die Kinder werden durch eine leichte Innenwand getrennt, die Räume können so später einfach zu einem großzügigen Raum verbunden werden. Im Dachgeschoß befindet sich der Bereich für die Eltern mit Studio der Künstlerin und Schlafbereich. Dieser ist je nach Stellung der Schiebetüren Teil des Gesamtraums oder kleines Schlafzimmer. Steg.
Entwurfsskizzen
Entwurfsskizzen Fassade.